Montpellier Agriculture, villa sur deux niveaux avec terrasse, garage et jardin

Référence de l'annonce : VVI124 Villa 520000 € Montpellier 208 m² 8 pièces 7 chambres Terrain 416 m²

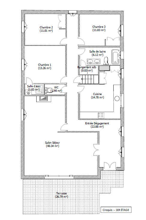
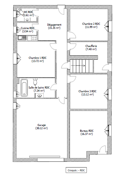
Montpellier Agriculture, villa non mitoyenne d’environ 208 m2 sur deux niveaux avec grand garage, terrasse et jardin – Dans une impasse au calme – Beau séjour de 40,34 m2 avec cheminée et terrasse de 26,70 m2 – Actuellement divisée en 2 appartements (un appartment T4 par niveau) – Pompe à chaleur et panneaux solaires – Classe énergie C – Honoraires inclus à la charge de l’acquéreur 20.000 euros TTC – Contact et visite Cyril Guignard 06.63.14.70.06 – Les informations sur les risques auxquels ce bien est exposé sont disponibles sur le site Géorisques : www.georisques.gouv.fr –

Caractéristiques générales

Surface habitable : 208 m² Terrain 416 m² Copropriété : Oui Charges de copropriété : 0 €/an 1 Parking 1 Garage

Aménagement du bien

8 Pièces 7 Chambres 2 Salles de bain 2 WC Cuisine : Separee -Semi-equipee

Consommation Énergétique

Consommation : 131 kWh/m²/an Prix moyens des énergies indexés au 1er janvier 2021 Montant estimé des dépenses pour un usage standard : entre 1690 et 2330 €/an
A+
A
B
C
D
E
F
G

Émissions de gaz à effet de serre

Émissions : 4 CO₂/m²/an
A+
A
B
C
D
E
F
G

Contactez votre agence